THE ATHENS ARCHAEOLOGICAL MUSEUM
Academia Platonos, Athens, Greece
First Distinction, International architectural competition 2022
area: 13.700 m2
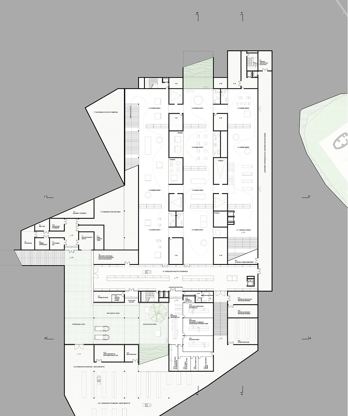
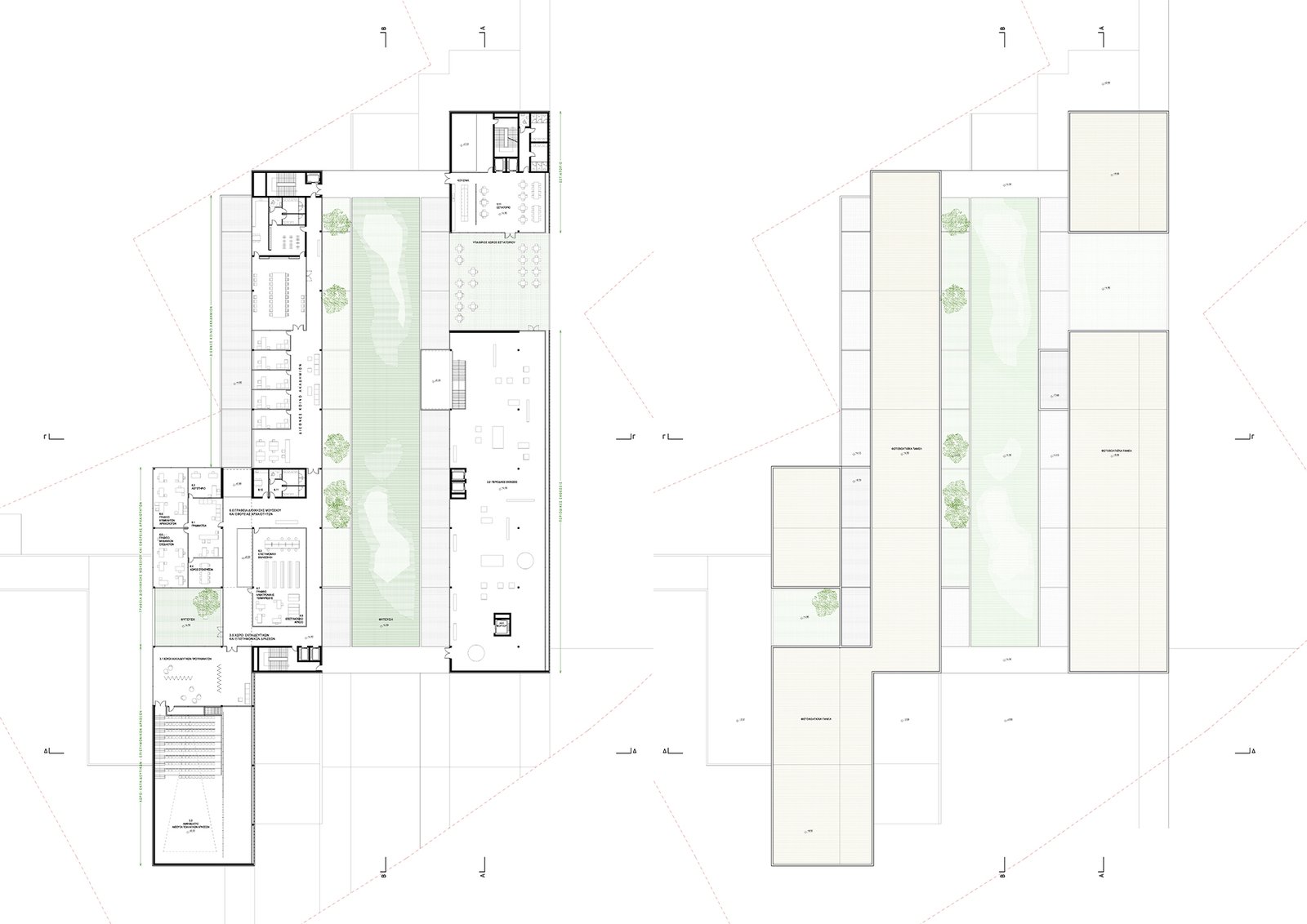
The Plato’s Academy Archaeological Park, a convergence of urban greenery and layered history, forms the foundation for a museum that aspires to be both a civic landmark and a cultural catalyst. The architectural approach emphasizes openness, ecological sensitivity, and a strong public character, with the Museum designed as a seamless extension of the park experience.
Through a network of indoor, outdoor, and covered pathways, visitors engage with the site’s spatial and temporal layers—experiencing the terrain as a living metaphor of historical sedimentation. The museological concept supports multiple narrative paths, accommodating both thematic and chronological interpretations.
A holistic, sustainability-driven strategy—aligned with BREEAM/LEED standards—shapes every aspect of the project, from passive environmental systems to low-impact materials and inclusive community practices.
Design team:
Iro Bertaki
Christina Loukopoulou
Costis Paniyiris
Konstantinos Apostolidis
Fotini Adrimi
Vassilis Kalisperakis
Thodoris Tousas
Consultants:
Michalis Aggelidis (structural engineer)
Emmanouil Papagrigorakis (mechanical engineer)
Helli Pangalou (landscape architect)
Chrysostomos Rizomiliotis (transportation expert)
Stefanos Keramidas (archeologist-museologist)
Dionysia Psilopoulou (archeologist)
Client:
Anaplasi Athinas AE












